Menu

R+1 TOIT PLAT

Construction R+1 avec toiture plate, enduit ton pierre habillé de faux claire voie par endroit.

Un carport pour deux voitures, accolé au module bureau.

 

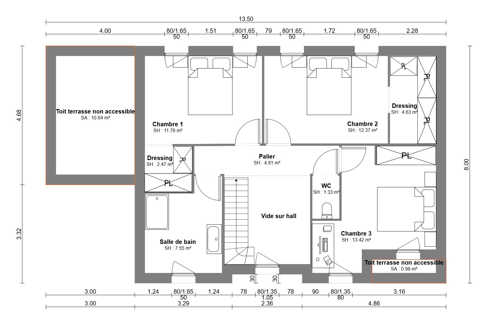
Maison d'environ 135 m²habitable avec possibilité de mettre une suite parentale au RDC à la place du bureau et 3 chambres à l’étage, dont 2 avec dressing et 1 avec grand placard.

FACADE AVANT

FACADE AVANT 3

FACADE AVANT 2

FACADE ARRIERE

FACADE ARRIERE 2

PLAN RDC

PLAN ETAGE

Questions fréquentes
Le Prix est-il Ferme et Définitif ?

chez ABJ CONSTRUCTIONS, Une fois le contrat signé, le prix de votre construction est bloqué. Aucune révision imprévue ne viendra impacter votre plan de financement.

Quels sont les Frais à prévoir lors d’une construction de maison individuelle ?

Nous listons ensemble les frais annexes (notaire, taxes de raccordement et d’aménagement, frais de viabilisation, aménagements extérieurs, cuisine …) pour une vision globale de votre investissement.

Norme RE2020 :

Toutes nos maisons respectent les dernières réglementations environnementales. Cela vous garantit une isolation thermique de pointe et une consommation d'énergie réduite.

Quel type de chauffage en maison individuelle ?

Nous privilégions des solutions durables, comme la pompe à chaleur, alliant confort de vie et économies substantielles.

Quels sont les délais pour faire construire une maison ?

La durée moyenne d'une construction est de 8 à 14 mois selon les projets. Nous suivons un planning rigoureux pour assurer une livraison dans les temps.

Accompagnement de Proximité : Vous n'êtes jamais seul.

Des visites de chantier sont prévues lors des étapes clés pour valider ensemble la conformité des travaux.

Quelles sont les assurances d’un contrat de construction ?

1• Garantie Décennale : Votre structure est protégée pendant 10 ans.

2• Garantie de Parfait Achèvement : Nous couvrons les éventuels réglages techniques durant la première année suivant la remise des clés.

3• Assurance Dommages-Ouvrage : Une sécurité indispensable incluse pour une prise en charge rapide en cas de besoin.

Puis-je modifier les plans d'un modèle de maison existant ?

Absolument. Chez ABJ CONSTRUCTIONS, nous adaptons les volumes et les agencements intérieurs pour que votre future maison corresponde parfaitement à votre mode de vie et à vos besoins.

Qui s'occupe du permis de construire ?

Chez ABJ CONSTRUCTIONS, nous prenons en charge l'intégralité du dossier administratif. De la conception des plans au dépôt en mairie, nous assurons le suivi pour obtenir votre permis de construire dans les meilleurs délais."

Quels types de finitions sont inclus dans le prix d’une construction ?

Notre offre inclut des prestations de qualité pour le prêt-à-décorer. Nous définissons ensemble, lors de la signature, le choix des carrelages, des sanitaires et des menuiseries pour que le rendu final soit à l'image de vos attentes.

Comment savoir si mon terrain est bien adapté à la construction ?

Nous réalisons systématiquement une étude d'implantation. Cela nous permet de vérifier la nature du sol et l'exposition, afin de garantir une assise solide et une luminosité optimale pour votre maison.

Quel type de briques ou de parpaings utilisez-vous pour les murs ?

Nous sélectionnons des matériaux certifiés offrant une excellente inertie thermique et une grande solidité. Selon votre projet, nous vous orientons vers la solution la plus adaptée pour garantir la pérennité de votre structure.

Puis-je me réserver certains travaux ?

Bien sûr. Nous pouvons intégrer des solutions domotiques pour piloter votre chauffage, vos volets roulants ou votre éclairage à distance. C’est un vrai plus pour votre confort quotidien et pour vos économies d'énergie.

Qu'est-ce qui différencie le CCMI d'un contrat d'architecte ou de maître d'œuvre ?

Le CCMI est le contrat le plus protecteur pour vous. Il vous garantit un interlocuteur unique, un prix fixe et une livraison à date certaine, le tout encadré par une réglementation très stricte en faveur de l'acquéreur.

Nos réalisations
Découvrez une sélection de projets uniques réalisés par
notre équipe de professionnels ! Faites appel à nous !
Galerie photos
vos témoignages
Laisser un avis
Nom et prénom*
E-mail*
Téléphone*
Ville
Superficie souhaitée
Message*
file
Nous contacter
16 bis rue Charles Dufour - 80640 Hornoy-le-Bourg

Horaires d'ouverture :

Du lundi au vendredi 09h à 12h et de 14h à 18h

Et le samedi sur RDV

Nous appeler
Suivez nous sur les réseaux instagram
garantie
constructeur
garantie
décennale